195 Elgin Street W Kawartha Lakes, Ontario K9V 6B1

5 Bedroom 2 Bathroom 1,100 - 1,500 ft2
Bungalow Fireplace Central Air Conditioning Forced Air

$635,000

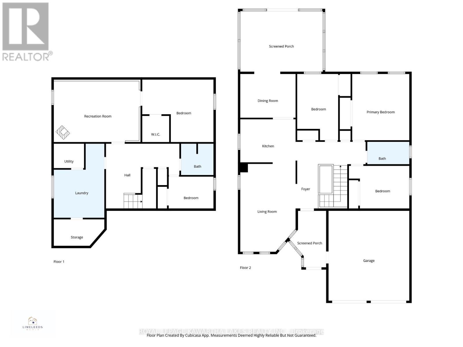
Welcome to this spacious 3 & 2 bed , fully bricked bungalow in a sought after neighbourhood, just minutes from schools, shops, parks and hospital. Boarding on a municipal park offering privacy and open views. This home features over2000 sf of living space, with newer kitchen, spacious bedrooms, hardwood floors, freshly painted, an attached 2 car garage, large sunroom overlooking parklike private yard. The fully finished basement has plenty of storage, and a cozy gas fireplace. Flexible closing , book your showing today. (id:56167)

Property Details

MLS® Number X12445130
Property Type Single Family
Community Name Lindsay
Features Irregular Lot Size
Parking Space Total 6

Building

Bathroom Total 2
Bedrooms Above Ground 3
Bedrooms Below Ground 2
Bedrooms Total 5
Age 31 To 50 Years
Amenities Fireplace(s)
Appliances Water Heater
Architectural Style Bungalow
Basement Development Finished
Basement Type N/a (finished)
Construction Style Attachment Detached
Cooling Type Central Air Conditioning
Exterior Finish Brick
Fireplace Present Yes
Fireplace Total 1
Foundation Type Poured Concrete
Heating Fuel Natural Gas
Heating Type Forced Air
Stories Total 1
Size Interior 1,100 - 1,500 Ft2
Type House
Utility Water Municipal Water

Parking

Attached Garage
Garage

Land

Acreage No
Sewer Sanitary Sewer
Size Depth 146 Ft
Size Frontage 43 Ft
Size Irregular 43 X 146 Ft
Size Total Text 43 X 146 Ft
Zoning Description Res

Rooms

Level Type Dimensions
Lower Level Bedroom 4.8 m x 4.2 m
Lower Level Bedroom 3 m x 2.2 m
Lower Level Bathroom 2.2 m x 2.1 m
Main Level Bedroom 2.8 m x 4.5 m
Main Level Bedroom 3.9 m x 4.5 m
Main Level Bedroom 4.1 m x 2.9 m
Main Level Bathroom 2.8 m x 1.5 m

Utilities

Electricity Installed
Sewer Installed

https://www.realtor.ca/real-estate/28952243/195-elgin-street-w-kawartha-lakes-lindsay-lindsay

Contact Us

Contact us for more information

Generating Captcha

Patricia Boyd
Broker

(705) 878-3737

Royal LePage Kawartha Lakes Realty Inc.

(705) 878-3737
(705) 878-4225
www.gowithroyal.com/

Your Favourites

 

No Favourites Found